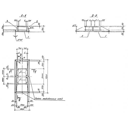
Ф5

Чертеж изделия:
Характеристики изделия:
ПараметрЗначение
длина1800 мм
ширина4200 мм
высота700 мм
вес8950 кг
серия0-221-84

Ф5 Плиты фундаментные по серии 0-221-84.