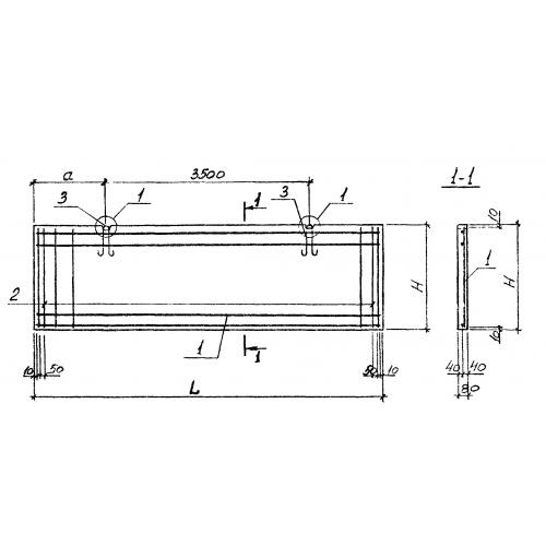
ПГ 60.18 панели перегородки

Чертеж изделия:
Характеристики изделия:
ПараметрЗначение
длина5980 мм
ширина80 мм
высота1785 мм
масса2000 кг
нормативный документСерия 1.030.9-2

ПГ 60.18   Перегородки панельные зданий промышленных и сельскохозяйстыенных предприятий Серия 1.030.9-2.