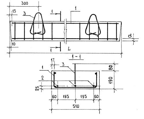
10ПП 18 перемычки плитные

Чертеж изделия:
Характеристики изделия:
ПараметрЗначение
длина1810 мм
ширина510 мм
высота190 мм
масса438 кг
нормативный документСерия 1.038.1-1

10ПП 18  Железобетонные перемычки плитного типа Серия 1.038.1-1.