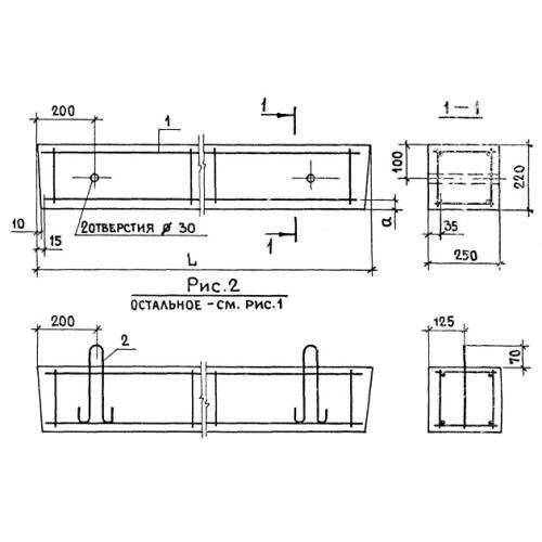
5ПБ 21 перемычки брусковые

Чертеж изделия:
Характеристики изделия:
ПараметрЗначение
длина2070 мм
ширина250 мм
высота220 мм
масса285 кг
нормативный документСерия 1.038.1-1

5ПБ 21  Перемычки брусковые Серия 1.038.1-1.