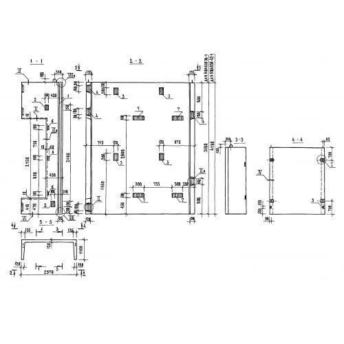
БШЛ 63-42 блок шахты лифта основной
Характеристики изделия:
| Параметр | Значение |
|---|---|
| длина | 2970 мм |
| ширина | 1100 мм |
| высота | 4180 мм |
| масса | 5880 кг |
| нормативный документ | Серия 1.089.1-1 |
Цена:
Рассчитать стоимостьБШЛ 63-42 Блоки шахт лифтов Серия 1.089.1-1.
| Параметр | Значение |
|---|---|
| длина | 2970 мм |
| ширина | 1100 мм |
| высота | 4180 мм |
| масса | 5880 кг |
| нормативный документ | Серия 1.089.1-1 |
БШЛ 63-42 Блоки шахт лифтов Серия 1.089.1-1.
