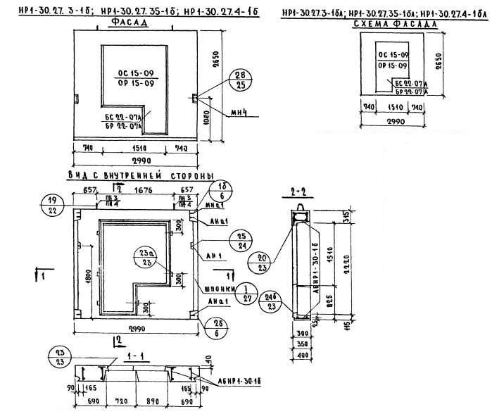
НР1-30.27.4-1бл

Чертеж изделия:
Характеристики изделия:
ПараметрЗначение
Длина2990 мм
Ширина400 мм
Высота2650 мм
Масса2840 кг
Нормативный документСерия 1.132-1

НР1-30.27.4-1бл   Наружная стеновая панель рядовая по Серии 1.132-1.