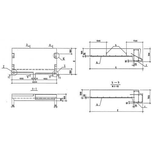
1ЛП 22.18

Чертеж изделия:
Характеристики изделия:
ПараметрЗначение
длина2200 мм
ширина1900 мм
высота320 мм
масса2145 кг
нормативный документСерия 1.152.1-8

1ЛП 22.18  Лестничные площадки плоские Серия 1.152.1-8.