ПП 18.8 плиты парапетные

Чертеж изделия:
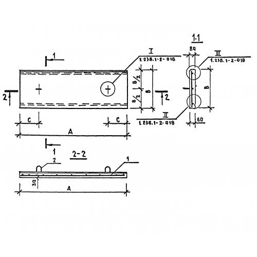
Характеристики изделия:
ПараметрЗначение
длина1790 мм
ширина800 мм
высота80 мм
масса240 кг
нормативный документСерия 1.238.1-2

ПП 18.8  Плиты парапетные Серия 1.238.1-2.