ЛМР 70.14.17

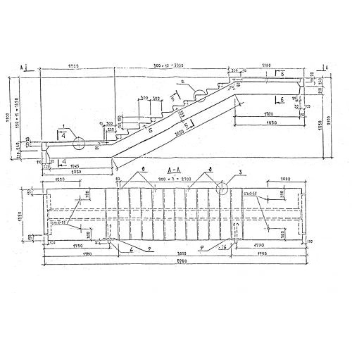
Чертеж изделия:
Характеристики изделия:
ПараметрЗначение
длина6960 мм
ширина1350 мм
высота2100 мм
масса4050 кг
нормативный документСерия 1.258 КЛ-2

ЛМР 58.14.17  Лестничные марш-площадки Серия 1.258 КЛ-2.