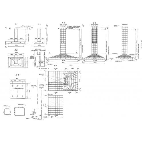
Б 3-4.0

Чертеж изделия:
Характеристики изделия:
ПараметрЗначение
длина3000 мм
ширина2000 мм
высота4000 мм
вес7700 кг
серия3.501.2-123

Б 3-4.0 Фундаментные блоки по серии 3.501.2-123.