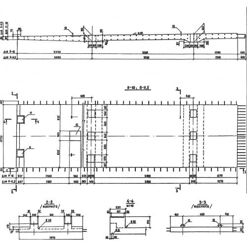
П-11.5
Характеристики изделия:
| Параметр | Значение |
|---|---|
| длина | 8080 мм |
| ширина | 2220 мм |
| высота | 254 мм |
| вес | 5750 кг |
| серия | 3.503.9-43/89 |
Цена:
Рассчитать стоимостьП-11.5 Блоки плит по серии 3.503.9-43/89.
| Параметр | Значение |
|---|---|
| длина | 8080 мм |
| ширина | 2220 мм |
| высота | 254 мм |
| вес | 5750 кг |
| серия | 3.503.9-43/89 |
П-11.5 Блоки плит по серии 3.503.9-43/89.
