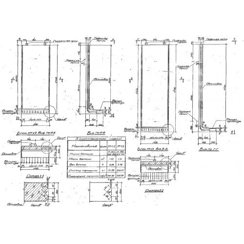
ПТ-С3

Чертеж изделия:
Характеристики изделия:
ПараметрЗначение
длина1480 мм
ширина950 мм
высота4700 мм
масса3780 мм
нормативный документСерия 3.507-1

ПТ-С3 Стеновой блок подземных тоннелей по Серии 3.507-1.