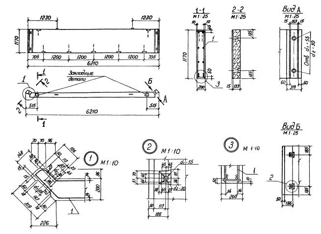
БС 3.1

Чертеж изделия:
Характеристики изделия:
ПараметрЗначение
Длина6210 мм
Ширина1170 мм
Высота200 мм
Масса3500 кг
Нормативный документСерия 3.702.1-4

БС 3.1  Балка силосная по Серии 3.702.1-4.