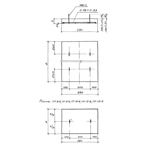
ПТ 3-6 Плиты покрытия лотков
Характеристики изделия:
| Параметр | Значение |
|---|---|
| длина | 590 мм |
| ширина | 500 мм |
| высота | 50 мм |
| масса | 40 кг |
| нормативный документ | Серия 3.900.-3 |
Цена:
Рассчитать стоимостьПТ 3-6 Плиты покрытия лотков по Серии 3.900.-3.
| Параметр | Значение |
|---|---|
| длина | 590 мм |
| ширина | 500 мм |
| высота | 50 мм |
| масса | 40 кг |
| нормативный документ | Серия 3.900.-3 |
ПТ 3-6 Плиты покрытия лотков по Серии 3.900.-3.
