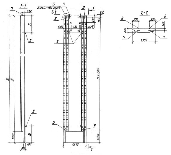
3ПС 114.3-2к

Чертеж изделия:
Характеристики изделия:
ПараметрЗначение
Длина1970 мм
Ширина300 мм
Высота12400 мм
Масса14700 кг
Нормативный документСерия 3.901.1-14

3ПС 114.3-2к   Панель стеновая по Серии 3.901.1-14.

Маркировка

3 - производство работ способом "стена в грунте";

ПС - панель стеновая;

114 - длина стеновой панели в дм;

3 - толщина стеновой панели в дм;

2 - тип армирования;

к - вариант с клиновидным стыком.