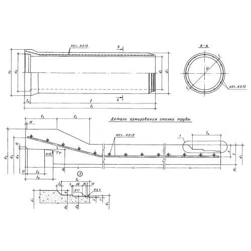
ТНН 160.50
Характеристики изделия:
| Параметр | Значение |
|---|---|
| длина | 5180 мм |
| ширина | 2208 мм |
| высота | 2208 мм |
| вес | 13180 кг |
| серия | 3.901.1-15 |
Цена:
Рассчитать стоимостьТНН 160.50 Трубы низконапорные центобежнопрокатные по серии 3.901.1-15.
| Параметр | Значение |
|---|---|
| длина | 5180 мм |
| ширина | 2208 мм |
| высота | 2208 мм |
| вес | 13180 кг |
| серия | 3.901.1-15 |
ТНН 160.50 Трубы низконапорные центобежнопрокатные по серии 3.901.1-15.
