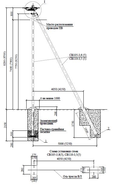
ПА 31
Характеристики изделия:
| Параметр | Значение |
|---|---|
| длина | 10350 мм |
| ширина | 205 мм |
| высота | 280 мм |
| масса | 1175 кг |
| нормативный документ | Шифр 26.0085 |
Цена:
Рассчитать стоимостьПА 31 Переходные анкерные (концевые) одноцепные опоры Шифр 26.0085.
| Параметр | Значение |
|---|---|
| длина | 10350 мм |
| ширина | 205 мм |
| высота | 280 мм |
| масса | 1175 кг |
| нормативный документ | Шифр 26.0085 |
ПА 31 Переходные анкерные (концевые) одноцепные опоры Шифр 26.0085.